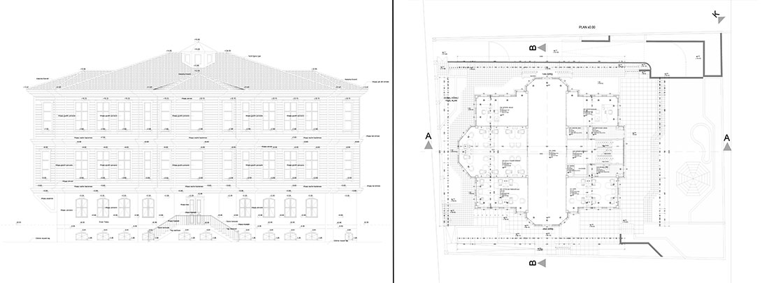
İbrahim Efendi Konağı

İşveren :
İstanbul Üniversitesi

Proje Yeri :
İstanbul

Proje Tipi :
İdari

Proje Alanı :
1.950 m²

Proje Yılı :
2012

İbrahim Efendi Konağı
İbrahim Efendi Konağı
İbrahim Efendi Konağı
İbrahim Efendi Konağı